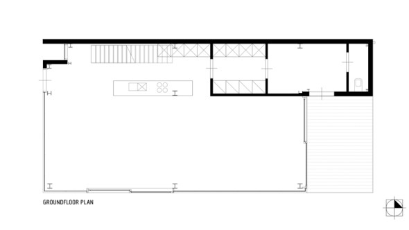
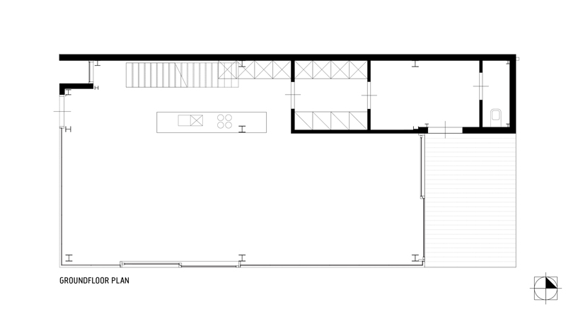
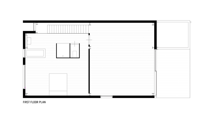
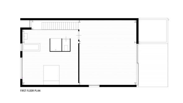
Architecture firm OYO (Open Y Office) has created a single-family house where the concept of less is the result and not the goal. Conceived as a place without boundaries, the use of steel throughout the structure gives the experience of an open plan. The garden is the living room, the small lake is the bathroom, and the kitchen is next door. There is no need for ornament, just a pure minimalistic approach to the idea of living.
Project Information:
House GEPO
Architects: OYO – Open Y Office
Location: Wijgmaal, Belgium
Area: 180 sqm
Year: 2012
Photography: Tom Janssens
















Leave a comment